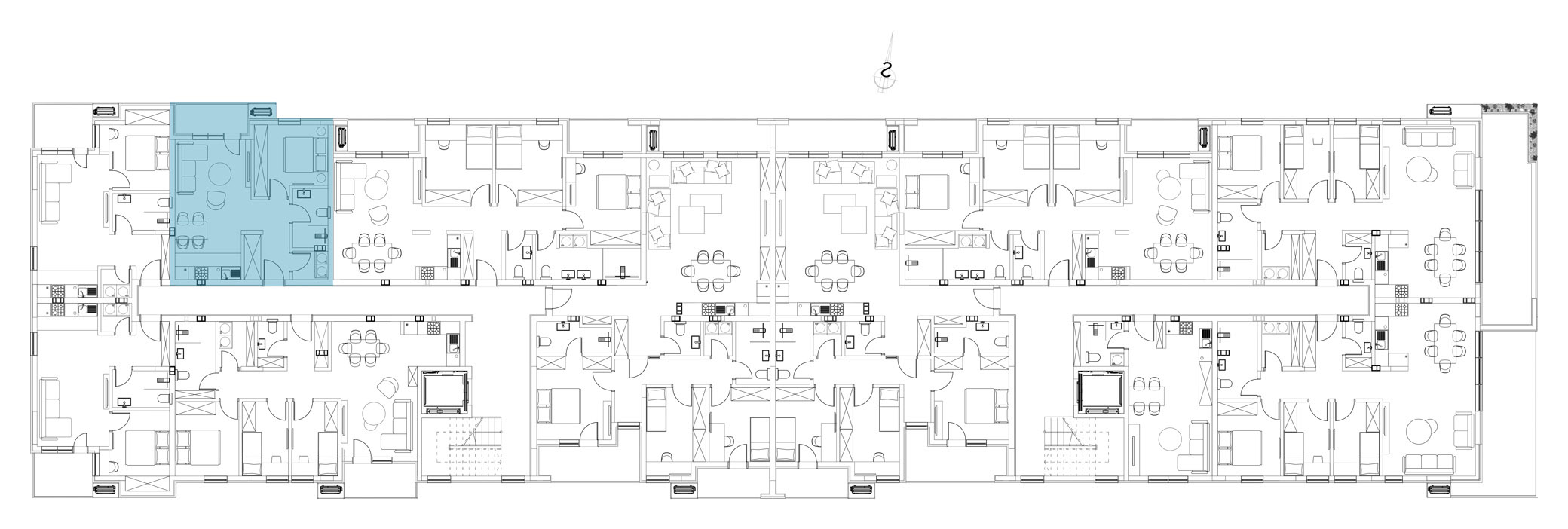
| Prostorije | P/m2 |
|---|---|
| Hodnik | 6.88 |
| Dnevna soba sa kuhinjom i trpezarijom | 18.19 |
| Spavaća soba | 5.04 |
| Kupatilo | 4.41 |
| Vešernica | 2.13 |
| Terasa | 2.13 |
Ukupna kvadratura: 36.65 m2
| Gratis P/m2 | 11.39 |
Cena stana: 69.854,90 EUR 1.906 EUR/m2 sa PDV-om
| Prostorije | P/m2 |
|---|---|
| Hodnik | 6.88 |
| Dnevna soba sa kuhinjom i trpezarijom | 18.19 |
| Spavaća soba | 5.04 |
| Kupatilo | 4.41 |
| Vešernica | 2.13 |
| Terasa | 2.13 |
Ukupna kvadratura: 36.65 m2
| Gratis P/m2 | 11.39 |
Cena stana: 69.854,90 EUR 1.906 EUR/m2 sa PDV-om