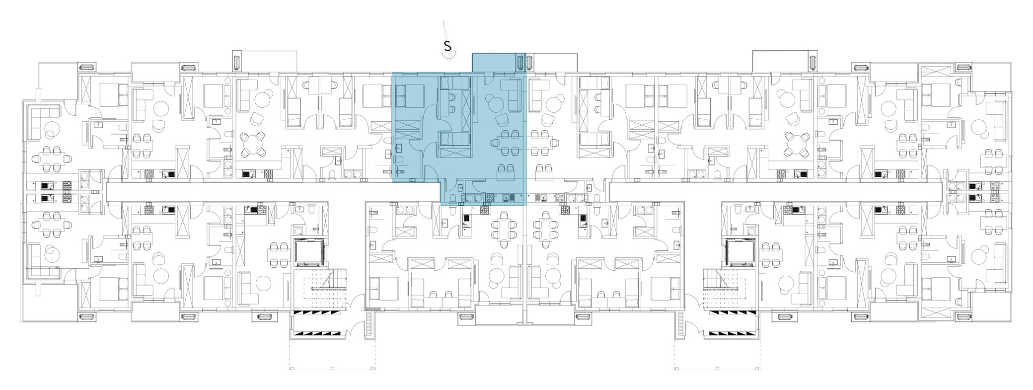
| Prostorije | P/m2 |
|---|---|
| Hodnik | 6.30 |
| WC | 1.95 |
| Vešernica | 1.94 |
| Kupatilo | 5.84 |
| Kuhinja | 9.31 |
| Dnevna soba sa trpezarijom | 19.63 |
| Predsoblje | 2.79 |
| Spavaća soba | 10.25 |
| Spavaća soba | 9.63 |
| Terasa | 4.76 |
Ukupna kvadratura: 72.39 m2
Cena stana: 111.480,60 EUR 1.540 EUR/m2 sa PDV-om







